家里有个独立玄关真的很重要,一来可以放置鞋柜收纳鞋子和进出门时的小物件,二来把玄关设计好看后也能提升进出门时的仪式感,给第一次来家里的人留下一个好印象。
然而现在很多房子都是“无玄关户型”,那么这类没有玄关的户型在装修的时候该怎么设计才能兼具好看和实用两个功能呢?看了网友们分享的自家设计后,我决定不动脑子了,直接抄作业就可以了。
一、设计侧边鞋柜
这位网友家是中间户,进门就是过道,入户门两边分别是客厅和餐厅没有独立玄关,而且这个户型也没法通过拆改增设玄关。
为了让入户看起来清爽美观、鞋子有地方放,网友利用餐边柜的侧面设计了一组鞋柜。
常规的餐边柜深度都是35公分,为了凑鞋柜的尺寸,网友把餐边柜设计成了45公分深,这样靠近入户门的一侧就可以设计一组宽*深为45*36公分的鞋柜。
侧边鞋柜不大,在设计上也比较注重细节,中间镂空+抽屉方便随手放钥匙和口罩之类的小物件;下方设计活动层板柜,每一层可以放两双常规鞋子,足够一家三口的日常所需了;上方可以放不常用的物品。

为了让入户区看起来更美观时尚,网友特意用深色格栅板做了墙面造型,同时也是沙发墙的背景造型,搭配黑色皮质沙发和黑色边凳,颜值绝对没的说。
二、定制一体鞋柜
网友@Gab家的玄关设计是我一眼就喜欢上的。他家原本也是一字型的客餐厅,入户门两侧分别是客厅和餐厅,没有玄关,但是他通过定制一体柜设计出了一个小小的玄关区域。
站在室内看向入户门,左侧是餐厅定制了餐边柜,右边是客厅,同样定制了一组和餐边柜同深度的收纳柜,两组柜子中间全部用柜门同款木饰面包裹住。
另外,入户门上方的吊顶也用同款木饰面装饰,两组柜子就这样连接成了一个整体。
靠近客厅的收纳柜也是鞋柜,里面安装了活动层板可以用来放鞋子和客厅日常杂物,用起来很顺手。
三、侧面隔断柜
网友@三月三家的户型也没有玄关,既不好看也没地方放鞋子,而且进门就是客厅餐厅,一点隐私也没有。
所以,她设计了一组隔断柜。

靠近餐厅的一侧墙面设计了餐边柜,为了避免一进门就有大体量柜子有压抑感,她特意把餐边柜没有设计到顶着入户门,留出部分空间刚好放个落地衣架,平常放个包、挂个外套非常好。
在靠近客厅的一侧,网友定制了一组隔断柜,柜体+玻璃的形式,既有收纳、有隐私又不会影响采光和空间上的通透感,还多了一个可以装饰的小台面。
四、侧面吊装玄关柜
网友@Su也选择了侧面安装玄关柜,但是和上面那位网友不同的是她家的玄关柜更具有个性、观赏性。
这组玄关柜的与入户墙面留有一定的空间,装了一个深色的小方格柜,鞋柜的上部分采用吊装形式,底部又设计了一组落地鞋盒柜。
这组柜子采用了吊装和留空的形式,既有了收纳、避免了进门见厅的尴尬,同时更显空间的轻盈、更有设计感。
五、安装半高隔断柜
网友@Mm家进门后往餐厅都得地方是有一堵窄墙面的,往客厅那边完全就是没有任何阻挡,没有玄关的概念,所以她在入户门和客厅之间设计了一组半高隔断柜。
这组半高柜既给空间做了明确的划分,又能满足玄关区域的鞋子收纳需求。
和通顶柜相比,半高的设计不会阻拦视线,公共区域看上去也会更宽敞。
在另外一侧墙面上安装了洞洞板,平常挂个钥匙包包外套的也很方便,而且还能放点小绿植装饰一下。
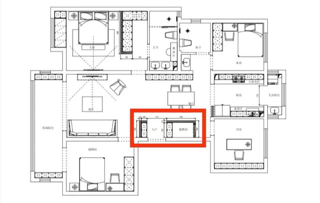
六、新建玄关

网友@李小宅家的户型进门也是没有玄关,但是她在后期的装修中新建了一个玄关。
原本入户门两侧分别是客厅和餐厅,网友两边分别砌墙,一边预留玄关柜,另外一边是储藏间,与客餐厅连接的门洞设计成了弧形门洞,很有设计感。
写在最后:
户型不好,设计来凑。所以即使买到不满意的户型,只要结构可以变动、布局就可以重新调整到自己喜欢的状态。
如果你家也是无玄关户型,那不妨参考一下以上网友们分享的设计吧。



微信扫一扫打赏
支付宝扫一扫打赏



评论列表()